【一棟貸】東大阪市川田3丁目倉庫
170.85 - 347.75 坪
/
565 - 1,150 m²
坪単価:お問い合せください
JP
お電話
お問合せ
オフィス・事務所
倉庫・物流センター
地図検索
記事
仲介会社様はこちらへ
お気に入り
JP
お電話
お問合せ
倉庫
物件ID:
JPN-P-003QHM
IC5km以内
4 図面
【一棟貸】東大阪市川田3丁目倉庫
大阪府東大阪市
坪単価:お問い合せください
募集面積:
170.85 - 347.75 坪
/
565 - 1,150 m²
お問い合わせ
お電話
共有する
物件詳細
物件概要
所在地
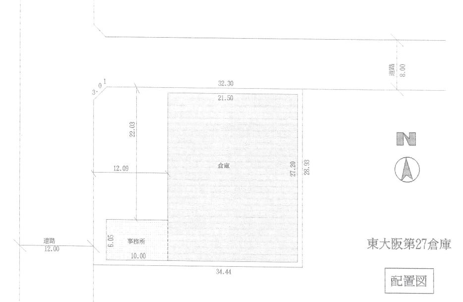
平面図
物件詳細
東大阪市川田3丁目倉庫は、1989年竣工の大阪府東大阪市にある、物流施設、貸し倉庫等の賃貸物流物件です。地上2階建て、延床面積は384.35坪(1,270.58㎡)、構造はS造、耐震構造、用途地域は第一種住居地域です。最寄り駅は、近鉄けいはんな線吉田駅から徒歩17分、JR片町線〔学研都市線〕住道駅から徒歩26分です。最寄りICは、阪神13号東大阪線水走出入口から約3km、第二阪奈道路西石切ICから約3.2km、阪神13号東大阪線中野出入口から約5.5kmです。
募集区画
所在地
平面図
倉庫
大阪府
東大阪市
【一棟貸】東大阪市川田3丁目倉庫