新横浜2-6-13
新横浜2-6-13
新横浜2-6-13
新横浜2-6-13
オフィス
物件ID: JPN-P-000GPI
即入居可

新横浜ステーションビル

神奈川県横浜市港北区新横浜2-6-13

13,000 円/坪から

  • 募集面積:31.6 - 43.25 坪 / 104 - 143 m² 
  • 物件詳細
  • 物件概要
  • 所在地
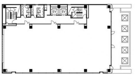
  • 平面図

物件詳細

新横浜ステーションビルは、1987年竣工の神奈川県横浜市港北区にある賃貸オフィスビルです。地上10階/地下1階建て、基準階面積は138.00坪、天井高は2,450mm、耐震構造です。最寄り駅は、JR東海道新幹線新横浜駅から徒歩3分、JR横浜線新横浜駅から徒歩3分、横浜市営ブルーライン新横浜駅から徒歩3分です。

募集区画

所在地

平面図

※基準階とは、多階層ビルにおいて基準となる平面を持つ階になります。

※このページに含まれる情報は、一般的な情報提供のみを目的としています。特に空室状況については現況が異なる場合があるため、詳細についてはお問い合わせ下さい。