新橋2-4-2
新橋2-4-2
新橋2-4-2
新橋2-4-2
新橋2-4-2
新橋2-4-2
オフィス
物件ID: JPN-P-000GED
即入居可

新橋アオヤギビル

東京都港区新橋2-4-2

63,068 円/坪から

  • 募集面積:20.18 坪 / 67 m² 
  • 物件詳細
  • 物件概要
  • 所在地
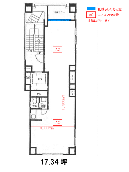
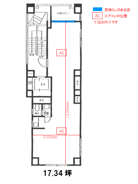
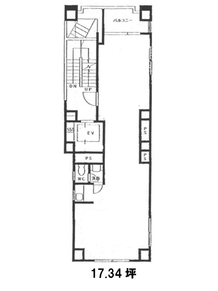
  • 平面図

物件詳細

新橋アオヤギビルは、1984年竣工の東京都港区にある賃貸オフィスビルです。地上8階建て、基準階面積は17.00坪、天井高は2,450mmです。最寄り駅は、東京メトロ丸ノ内線霞ヶ関駅から徒歩1分、東京メトロ千代田線霞ヶ関駅から徒歩1分、東京メトロ日比谷線霞ヶ関駅から徒歩1分です。

募集区画

所在地

平面図

※基準階とは、多階層ビルにおいて基準となる平面を持つ階になります。

※このページに含まれる情報は、一般的な情報提供のみを目的としています。特に空室状況については現況が異なる場合があるため、詳細についてはお問い合わせ下さい。