渋谷3-8-11
渋谷3-8-11
渋谷3-8-11
渋谷3-8-11
渋谷3-8-11
渋谷3-8-11
渋谷3-8-11
オフィス
物件ID: JPN-P-000GBP
即入居可

渋谷三丁目TRビル

東京都渋谷区渋谷3-8-11

坪単価:お問い合せください

  • 募集面積:21.5 坪 / 71 m² 
  • 物件詳細
  • 物件概要
  • 所在地
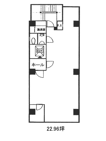
  • 平面図

物件詳細

渋谷三丁目TRビルは、1978年竣工の東京都渋谷区にある賃貸オフィスビルです。地上9階/地下1階建て、基準階面積は23.56坪です。最寄り駅は、東京メトロ半蔵門線渋谷駅から徒歩3分、東京メトロ副都心線渋谷駅から徒歩3分、東急田園都市線渋谷駅から徒歩3分です。

募集区画

所在地

平面図

※基準階とは、多階層ビルにおいて基準となる平面を持つ階になります。

※このページに含まれる情報は、一般的な情報提供のみを目的としています。特に空室状況については現況が異なる場合があるため、詳細についてはお問い合わせ下さい。