
オフィス
物件ID: JPN-P-000G21セイキ第2ビル
東京都千代田区外神田5-2-11
11,000 円/坪から
- 募集面積:29.5 坪 / 98 m²
- 物件詳細
- 物件概要
- 所在地
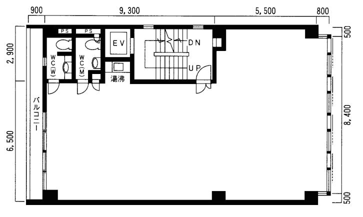
- 平面図
- お問い合わせ
※基準階とは、多階層ビルにおいて基準となる平面を持つ階になります。
※このページに含まれる情報は、一般的な情報提供のみを目的としています。特に空室状況については現況が異なる場合があるため、詳細についてはお問い合わせ下さい。

東京都千代田区外神田5-2-11
11,000 円/坪から
※基準階とは、多階層ビルにおいて基準となる平面を持つ階になります。
※このページに含まれる情報は、一般的な情報提供のみを目的としています。特に空室状況については現況が異なる場合があるため、詳細についてはお問い合わせ下さい。