南二条西4
南二条西4
オフィス
物件ID: JPN-P-0042ZN

札幌ダイビル

北海道札幌市中央区南二条西4

坪単価:お問い合せください

  • 募集面積:618 坪 / 2,043 m² 
  • 物件詳細
  • 物件概要
  • 所在地
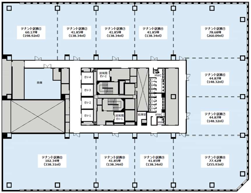
  • 平面図
  • お問い合わせ

物件詳細

札幌ダイビルは、2027年竣工の北海道札幌市中央区にある賃貸オフィスビルです。地上19階/地下2階建て、基準階面積は617.58坪、天井高は2,800mm、OAフロアあり、耐震構造です。最寄り駅は、札幌市電山鼻線狸小路駅から徒歩1分、札幌市電山鼻線西4丁目駅から徒歩2分、札幌市営東西線大通駅から徒歩3分です。

募集区画

所在地

平面図

※基準階とは、多階層ビルにおいて基準となる平面を持つ階になります。

※このページに含まれる情報は、一般的な情報提供のみを目的としています。特に空室状況については現況が異なる場合があるため、詳細についてはお問い合わせ下さい。