東高津町11-9
東高津町11-9
東高津町11-9
オフィス
物件ID: JPN-P-000DI5

サムティ上本町ビル

大阪府大阪市天王寺区東高津町11-9

坪単価:お問い合せください

  • 募集面積:29.18 - 56.59 坪 / 96 - 187 m² 
  • 物件詳細
  • 物件概要
  • 所在地
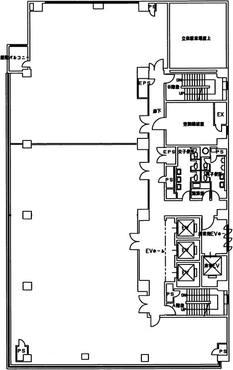
  • 平面図

物件詳細

サムティ上本町ビルは、1985年竣工の大阪府大阪市天王寺区にある賃貸オフィスビルです。地上12階/地下1階建て、基準階面積は160.02坪、天井高は2,450mm、OAフロアあり、耐震構造です。最寄り駅は、近鉄大阪線大阪上本町駅から徒歩5分、近鉄奈良線大阪上本町駅から徒歩5分、近鉄難波線大阪上本町駅から徒歩5分です。

募集区画

所在地

平面図

※基準階とは、多階層ビルにおいて基準となる平面を持つ階になります。

※このページに含まれる情報は、一般的な情報提供のみを目的としています。特に空室状況については現況が異なる場合があるため、詳細についてはお問い合わせ下さい。