
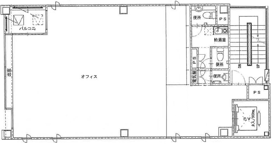
オフィス
物件ID: JPN-P-0068XKセットアップ
REZET新大阪
大阪府大阪市淀川区西中島6-11-28
坪単価:お問い合せください
- 募集面積:31.41 坪 / 104 m²
- 物件詳細
- 物件概要
- 所在地
- 平面図
※基準階とは、多階層ビルにおいて基準となる平面を持つ階になります。
※このページに含まれる情報は、一般的な情報提供のみを目的としています。特に空室状況については現況が異なる場合があるため、詳細についてはお問い合わせ下さい。

大阪府大阪市淀川区西中島6-11-28
坪単価:お問い合せください
※基準階とは、多階層ビルにおいて基準となる平面を持つ階になります。
※このページに含まれる情報は、一般的な情報提供のみを目的としています。特に空室状況については現況が異なる場合があるため、詳細についてはお問い合わせ下さい。