プロロジスパーク市川2
4,619.82 坪
/
15,272 m²
坪単価:お問い合せください
JP
お電話
お問合せ
オフィス・事務所
倉庫・物流センター
地図検索
記事
仲介会社様はこちらへ
お気に入り
JP
お電話
お問合せ
倉庫
物件ID:
JPN-P-001N41
IC5km以内
2 写真
3 図面
プロロジスパーク市川2
千葉県市川市
坪単価:お問い合せください
募集面積:
4,619.82 坪
/
15,272 m²
お問い合わせ
お電話
共有する
物件詳細
物件概要
所在地
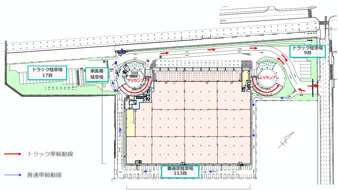
平面図
物件詳細
プロロジスパーク市川2は、2009年竣工の千葉県市川市にある、物流施設、貸し倉庫等の賃貸物流物件です。地上5階建て、延床面積は27,390.16坪(90,545.98㎡)、耐震構造は免震です。最寄り駅は、JR京葉線市川塩浜駅から徒歩22分、JR武蔵野線(西船橋-市川塩浜)市川塩浜駅から徒歩22分、東京メトロ東西線妙典駅から徒歩29分です。最寄りICは、首都湾岸線千鳥町出入口から約1.4km、東関東自動車道(高谷-潮来)湾岸市川ICから約2.8km、東京外環自動車道市川南ICから約3.1kmです。
募集区画
所在地
平面図
倉庫
千葉県
市川市
プロロジスパーク市川2