大阪市淀川区三国本町倉庫事務所
94.32 - 274.38 坪
/
312 - 907 m²
坪単価:お問い合せください
JP
お電話
お問合せ
オフィス・事務所
倉庫・物流センター
地図検索
記事
仲介会社様はこちらへ
お気に入り
JP
お電話
お問合せ
倉庫
物件ID:
JPN-P-002CM7
即入居可
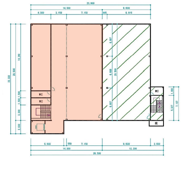
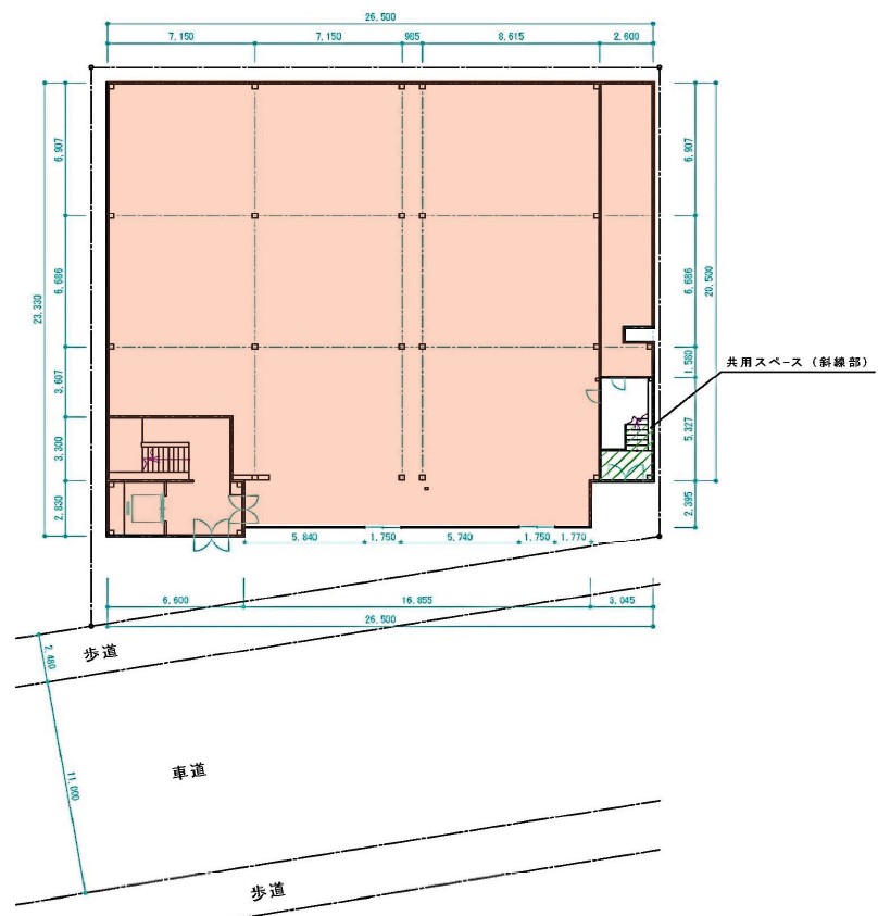
2 図面
大阪市淀川区三国本町倉庫事務所
大阪府大阪市淀川区
坪単価:お問い合せください
募集面積:
94.32 - 274.38 坪
/
312 - 907 m²
お問い合わせ
お電話
共有する
物件概要
所在地
平面図
募集区画
所在地
平面図
倉庫
大阪府
大阪市
淀川区
大阪市淀川区三国本町倉庫事務所