神田松永町17-15
神田松永町17-15
オフィス
物件ID: JPN-P-000V78
即入居可

大野ビル

東京都千代田区神田松永町17-15

15,000 円/坪から

  • 募集面積:27.6 坪 / 91 m² 
  • 物件詳細
  • 物件概要
  • 所在地
  • 平面図
  • お問い合わせ

物件詳細

大野ビルは、1986年竣工の東京都千代田区にある賃貸オフィスビルです。地上10階建て、基準階面積は29.00坪、天井高は2,480mm、耐震構造です。最寄り駅は、東京メトロ日比谷線秋葉原駅から徒歩3分、つくばエクスプレス秋葉原駅から徒歩3分、JR総武線各停(御茶ノ水-錦糸町)秋葉原駅から徒歩4分です。

募集区画

所在地

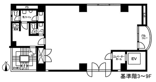
平面図

※基準階とは、多階層ビルにおいて基準となる平面を持つ階になります。

※このページに含まれる情報は、一般的な情報提供のみを目的としています。特に空室状況については現況が異なる場合があるため、詳細についてはお問い合わせ下さい。