西五反田7-24-5
西五反田7-24-5
西五反田7-24-5
西五反田7-24-5
オフィス
物件ID: JPN-P-000CS9
即入居可

ONEST西五反田スクエア

東京都品川区西五反田7-24-5

坪単価:お問い合せください

  • 募集面積:91.46 坪 / 302 m² 
  • 物件詳細
  • 物件概要
  • 所在地
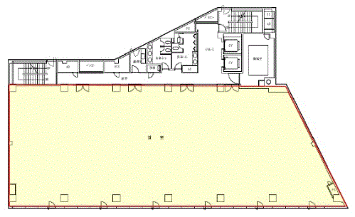
  • 平面図

物件詳細

ONEST西五反田スクエアは、1988年竣工の東京都品川区にある賃貸オフィスビルです。地上8階/地下1階建て、基準階面積は173.87坪、天井高は2,550mm、OAフロアあり、耐震構造です。最寄り駅は、東急池上線大崎広小路駅から徒歩7分、都営浅草線戸越駅から徒歩10分、東急池上線戸越銀座駅から徒歩11分です。

募集区画

所在地

平面図

※基準階とは、多階層ビルにおいて基準となる平面を持つ階になります。

※このページに含まれる情報は、一般的な情報提供のみを目的としています。特に空室状況については現況が異なる場合があるため、詳細についてはお問い合わせ下さい。