西新宿1-19-7
西新宿1-19-7
西新宿1-19-7
西新宿1-19-7
オフィス
物件ID: JPN-P-000DHY
即入居可

岡崎ビル

東京都新宿区西新宿1-19-7

19,030 円 - 21,035 円/坪から

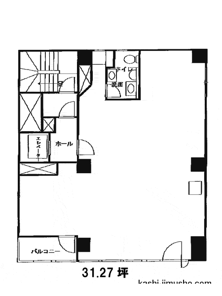
  • 募集面積:31.21 坪 / 103 m² 
  • 物件詳細
  • 物件概要
  • 所在地
  • 平面図
  • お問い合わせ

物件詳細

岡崎ビルは、1977年竣工の東京都新宿区にある賃貸オフィスビルです。地上10階/地下1階建て、基準階面積は31.00坪、天井高は2,340mmです。最寄り駅は、京王新線新宿駅から徒歩1分、都営大江戸線(環状部)新宿駅から徒歩1分、都営新宿線新宿駅から徒歩1分です。

募集区画

所在地

平面図

※基準階とは、多階層ビルにおいて基準となる平面を持つ階になります。

※このページに含まれる情報は、一般的な情報提供のみを目的としています。特に空室状況については現況が異なる場合があるため、詳細についてはお問い合わせ下さい。