上野5-6-10
上野5-6-10
上野5-6-10
上野5-6-10
オフィス
物件ID: JPN-P-000WO4
即入居可

御徒町フェニックスビル

東京都台東区上野5-6-10

19,977 円/坪から

  • 募集面積:35.54 坪 / 117 m² 
  • 物件詳細
  • 物件概要
  • 所在地
  • 平面図
  • お問い合わせ

物件詳細

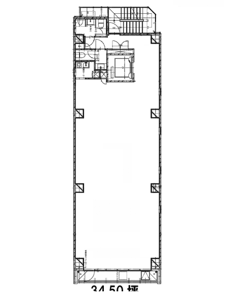
御徒町フェニックスビルは、2015年竣工の東京都台東区にある賃貸オフィスビルです。地上10階建て、基準階面積は34.50坪、天井高は2,575mmです。最寄り駅は、東京メトロ銀座線上野広小路駅から徒歩1分、都営大江戸線(環状部)上野御徒町駅から徒歩1分、JR京浜東北線御徒町駅から徒歩4分です。

募集区画

所在地

平面図

※基準階とは、多階層ビルにおいて基準となる平面を持つ階になります。

※このページに含まれる情報は、一般的な情報提供のみを目的としています。特に空室状況については現況が異なる場合があるため、詳細についてはお問い合わせ下さい。