神田須田町1-10-8
神田須田町1-10-8
オフィス
物件ID: JPN-P-00128H
掲載終了物件

老川ビル

東京都千代田区神田須田町1-10-8

坪単価:お問い合せください

  • 物件詳細
  • 物件概要
  • 所在地
  • 平面図

物件詳細

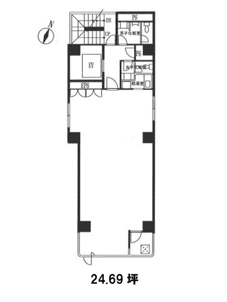
老川ビルは、1992年竣工の東京都千代田区にある賃貸オフィスビルです。地上9階/地下1階建て、基準階面積は24.69坪、天井高は2,380mm、耐震構造です。最寄り駅は、東京メトロ千代田線新御茶ノ水駅から徒歩1分、JR総武線各停(御茶ノ水-錦糸町)御茶ノ水駅から徒歩2分、JR中央本線(東京-塩尻)御茶ノ水駅から徒歩2分です。

所在地

平面図

※基準階とは、多階層ビルにおいて基準となる平面を持つ階になります。

※このページに含まれる情報は、一般的な情報提供のみを目的としています。特に空室状況については現況が異なる場合があるため、詳細についてはお問い合わせ下さい。