名駅3-25-3
名駅3-25-3
名駅3-25-3
オフィス
物件ID: JPN-P-001K2T

大橋ビルディング

愛知県名古屋市中村区名駅3-25-3

21,000 円 - 22,000 円/坪から

  • 募集面積:31 - 140 坪 / 102 - 463 m² 
  • 物件詳細
  • 物件概要
  • 所在地
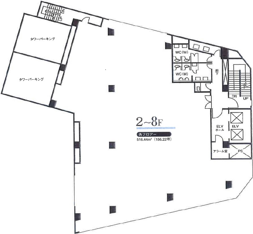
  • 平面図

物件詳細

大橋ビルディングは、1989年竣工の愛知県名古屋市中村区にある賃貸オフィスビルです。地上12階/地下1階建て、基準階面積は156.22坪、OAフロアあり、耐震構造です。最寄り駅は、JR関西本線(名古屋-亀山)名古屋駅から徒歩4分、JR中央本線(名古屋-塩尻)名古屋駅から徒歩4分、JR東海道新幹線名古屋駅から徒歩4分です。

募集区画

所在地

平面図

※基準階とは、多階層ビルにおいて基準となる平面を持つ階になります。

※このページに含まれる情報は、一般的な情報提供のみを目的としています。特に空室状況については現況が異なる場合があるため、詳細についてはお問い合わせ下さい。