本郷2-15-13
本郷2-15-13
本郷2-15-13
本郷2-15-13
オフィス
物件ID: JPN-P-000MOW

お茶の水ウイングビル

東京都文京区本郷2-15-13

14,762 円/坪から

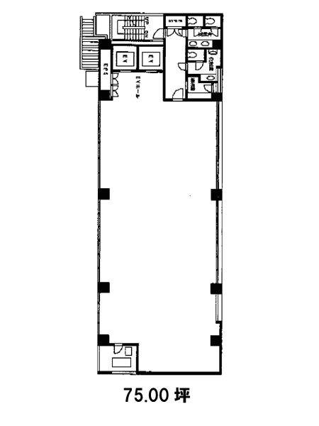
  • 募集面積:75.02 坪 / 248 m² 
  • 物件詳細
  • 物件概要
  • 所在地
  • 平面図
  • お問い合わせ

物件詳細

お茶の水ウイングビルは、1990年竣工の東京都文京区にある賃貸オフィスビルです。地上10階建て、基準階面積は75.00坪、天井高は2,450mmです。最寄り駅は、東京メトロ丸ノ内線本郷三丁目駅から徒歩6分、都営大江戸線(環状部)本郷三丁目駅から徒歩7分、都営三田線水道橋駅から徒歩7分です。

募集区画

所在地

平面図

※基準階とは、多階層ビルにおいて基準となる平面を持つ階になります。

※このページに含まれる情報は、一般的な情報提供のみを目的としています。特に空室状況については現況が異なる場合があるため、詳細についてはお問い合わせ下さい。