久太郎町1-4-8
久太郎町1-4-8
久太郎町1-4-8
久太郎町1-4-8
オフィス
物件ID: JPN-P-0014VW

NTPR堺筋本町ビル

大阪府大阪市中央区久太郎町1-4-8

坪単価:お問い合せください

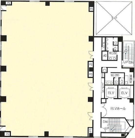
  • 募集面積:26.8 坪 / 89 m² 
  • 物件詳細
  • 物件概要
  • 所在地
  • 平面図
  • お問い合わせ

物件詳細

NTPR堺筋本町ビルは、1993年竣工の大阪府大阪市中央区にある賃貸オフィスビルです。地上12階建て、基準階面積は137.34坪、天井高は2,450mm、OAフロアあり、耐震構造です。最寄り駅は、OsakaMetro堺筋線堺筋本町駅から徒歩2分、OsakaMetro中央線堺筋本町駅から徒歩2分、OsakaMetro堺筋線長堀橋駅から徒歩11分です。

募集区画

所在地

平面図

※基準階とは、多階層ビルにおいて基準となる平面を持つ階になります。

※このページに含まれる情報は、一般的な情報提供のみを目的としています。特に空室状況については現況が異なる場合があるため、詳細についてはお問い合わせ下さい。