オフィス
物件ID: JPN-P-0011KY
掲載終了物件

第3プリンスビル

茨城県水戸市城南2-9-12

坪単価:お問い合せください

  • 物件詳細
  • 物件概要
  • 所在地
  • 平面図
  • お問い合わせ

物件詳細

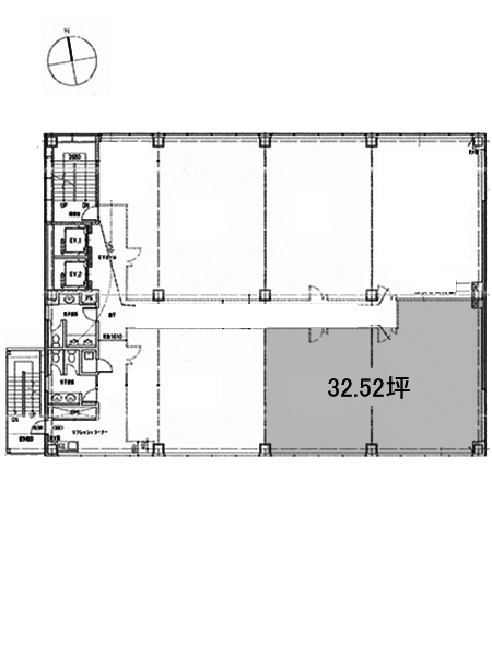
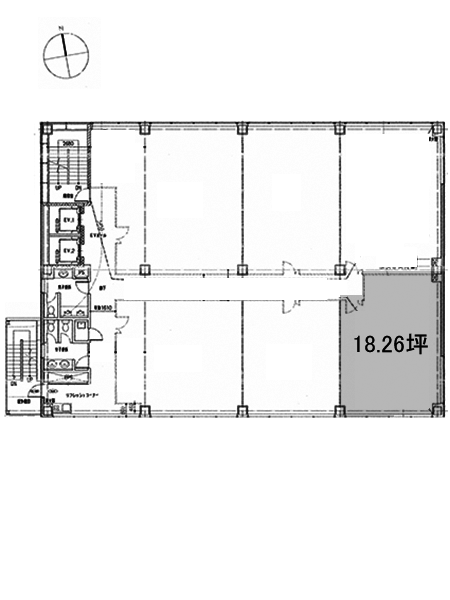
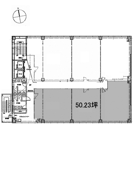
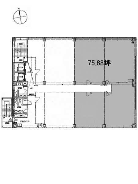
第3プリンスビルは、2003年竣工の茨城県水戸市にある賃貸オフィスビルです。地上6階建て、基準階面積は132.00坪、天井高は2,700mm、耐震構造です。最寄り駅は、JR常磐線水戸駅から徒歩11分、JR水郡線(水戸-安積永盛)水戸駅から徒歩11分、鹿島臨海鉄道大洗鹿島線水戸駅から徒歩11分です。

所在地

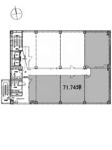
平面図

※基準階とは、多階層ビルにおいて基準となる平面を持つ階になります。

※このページに含まれる情報は、一般的な情報提供のみを目的としています。特に空室状況については現況が異なる場合があるため、詳細についてはお問い合わせ下さい。