北青山2-7-20
北青山2-7-20
オフィス
物件ID: JPN-P-0011GU
即入居可

第2猪瀬ビル

東京都港区北青山2-7-20

15,491 円/坪から

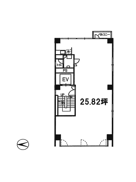
  • 募集面積:25.82 坪 / 85 m² 
  • 物件詳細
  • 物件概要
  • 所在地
  • 平面図

物件詳細

第2猪瀬ビルは、1974年竣工の東京都港区にある賃貸オフィスビルです。地上8階建て、基準階面積は26.00坪、天井高は2,420mmです。最寄り駅は、東京メトロ銀座線外苑前駅から徒歩1分、東京メトロ銀座線青山一丁目駅から徒歩9分、東京メトロ半蔵門線青山一丁目駅から徒歩9分です。

募集区画

所在地

平面図

※基準階とは、多階層ビルにおいて基準となる平面を持つ階になります。

※このページに含まれる情報は、一般的な情報提供のみを目的としています。特に空室状況については現況が異なる場合があるため、詳細についてはお問い合わせ下さい。