脇田本町14-1
脇田本町14-1
脇田本町14-1
脇田本町14-1
脇田本町14-1
脇田本町14-1
オフィス
物件ID: JPN-P-000CVE
即入居可

日本生命川越ビル

埼玉県川越市脇田本町14-1

坪単価:お問い合せください

  • 募集面積:127.18 坪 / 420 m² 
  • 物件詳細
  • 物件概要
  • 所在地
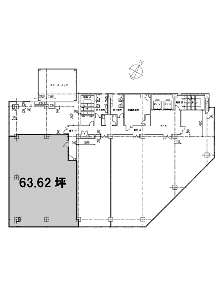
  • 平面図
  • お問い合わせ

物件詳細

日本生命川越ビルは、1977年竣工の埼玉県川越市にある賃貸オフィスビルです。地上7階建て、基準階面積は207.00坪、天井高は2,540mm、OAフロアあり、耐震構造です。最寄り駅は、JR川越線川越駅から徒歩3分、東武東上線川越駅から徒歩3分、西武新宿線本川越駅から徒歩12分です。

募集区画

所在地

平面図

※基準階とは、多階層ビルにおいて基準となる平面を持つ階になります。

※このページに含まれる情報は、一般的な情報提供のみを目的としています。特に空室状況については現況が異なる場合があるため、詳細についてはお問い合わせ下さい。