
オフィス
物件ID: JPN-P-000CL9居抜
即入居可
日本橋BSビル
東京都中央区日本橋富沢町10-14
16,000 円/坪から
- 募集面積:55.41 - 68.2 坪 / 183 - 225 m²
- 物件詳細
- 物件概要
- 所在地
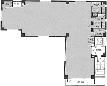
- 平面図
※基準階とは、多階層ビルにおいて基準となる平面を持つ階になります。
※このページに含まれる情報は、一般的な情報提供のみを目的としています。特に空室状況については現況が異なる場合があるため、詳細についてはお問い合わせ下さい。

東京都中央区日本橋富沢町10-14
16,000 円/坪から
※基準階とは、多階層ビルにおいて基準となる平面を持つ階になります。
※このページに含まれる情報は、一般的な情報提供のみを目的としています。特に空室状況については現況が異なる場合があるため、詳細についてはお問い合わせ下さい。