飯田橋1-8-9
飯田橋1-8-9
オフィス
物件ID: JPN-P-000P7H
掲載終了物件

ニューシティハイツ飯田橋

東京都千代田区飯田橋1-8-9

坪単価:お問い合せください

  • 物件詳細
  • 物件概要
  • 所在地
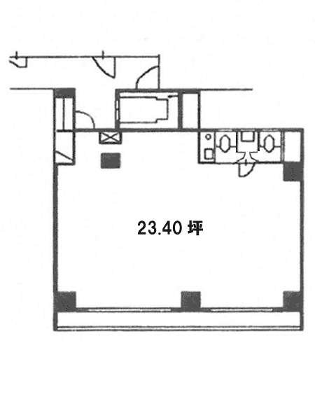
  • 平面図
  • お問い合わせ

物件詳細

ニューシティハイツ飯田橋は、1985年竣工の東京都千代田区にある賃貸物件です。地上10階建て、基準階面積は64.00坪、天井高は2,800mmです。最寄り駅は、JR中央本線(東京-塩尻)飯田橋駅から徒歩4分、東京メトロ東西線飯田橋駅から徒歩4分、東京メトロ南北線飯田橋駅から徒歩4分です。

所在地

平面図

※基準階とは、多階層ビルにおいて基準となる平面を持つ階になります。

※このページに含まれる情報は、一般的な情報提供のみを目的としています。特に空室状況については現況が異なる場合があるため、詳細についてはお問い合わせ下さい。