新富2-3-7
新富2-3-7
オフィス
物件ID: JPN-P-000C67
即入居可

波崎ビル

東京都中央区新富2-3-7

13,500 円/坪から

  • 募集面積:22.06 坪 / 73 m² 
  • 物件詳細
  • 物件概要
  • 所在地
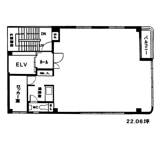
  • 平面図

物件詳細

波崎ビルは、1990年竣工の東京都中央区にある賃貸オフィスビルです。地上6階建て、基準階面積は22.00坪、耐震構造です。最寄り駅は、東京メトロ銀座線京橋駅から徒歩2分、東京メトロ有楽町線銀座一丁目駅から徒歩3分、都営浅草線宝町駅から徒歩3分です。

募集区画

所在地

平面図

※基準階とは、多階層ビルにおいて基準となる平面を持つ階になります。

※このページに含まれる情報は、一般的な情報提供のみを目的としています。特に空室状況については現況が異なる場合があるため、詳細についてはお問い合わせ下さい。