新橋4-24-11
新橋4-24-11
新橋4-24-11
新橋4-24-11
新橋4-24-11
新橋4-24-11
オフィス
物件ID: JPN-P-000C3P
掲載終了物件

中村ビル(新橋4-24-11)

東京都港区新橋4-24-11

坪単価:お問い合せください

  • 物件詳細
  • 物件概要
  • 所在地
  • 平面図

物件詳細

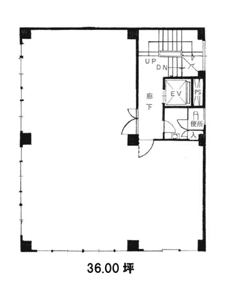
中村ビル(新橋4-24-11)は、1964年竣工の東京都港区にある賃貸オフィスビルです。地上9階/地下1階建て、基準階面積は36.00坪、天井高は2,500mmです。最寄り駅は、都営浅草線新橋駅から徒歩5分、JR横須賀線新橋駅から徒歩6分、JR京浜東北線新橋駅から徒歩6分です。

所在地

平面図

※基準階とは、多階層ビルにおいて基準となる平面を持つ階になります。

※このページに含まれる情報は、一般的な情報提供のみを目的としています。特に空室状況については現況が異なる場合があるため、詳細についてはお問い合わせ下さい。