
オフィス
物件ID: JPN-P-00141E即入居可
長崎堂ビル
東京都渋谷区渋谷3-10-14
24,997 円/坪から
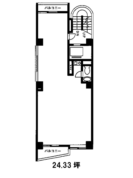
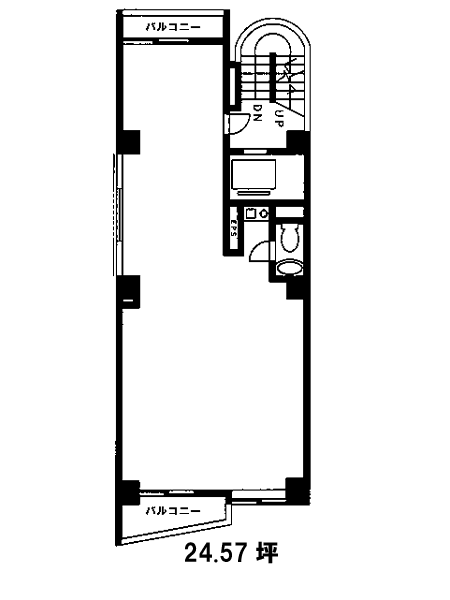
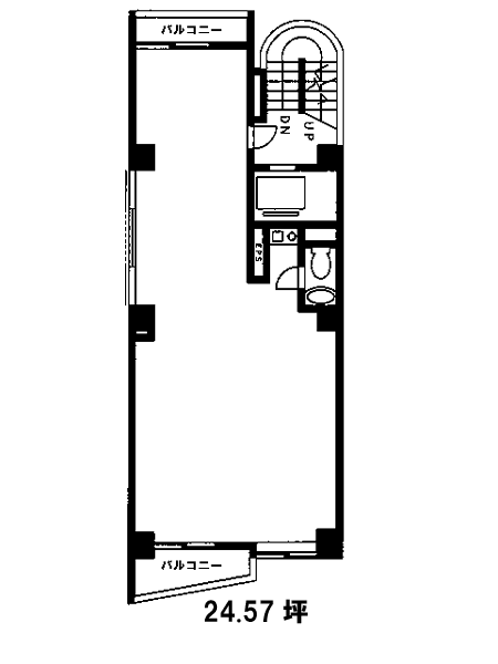
- 募集面積:24.57 坪 / 81 m²
- 物件詳細
- 物件概要
- 所在地
- 平面図
※基準階とは、多階層ビルにおいて基準となる平面を持つ階になります。
※このページに含まれる情報は、一般的な情報提供のみを目的としています。特に空室状況については現況が異なる場合があるため、詳細についてはお問い合わせ下さい。

東京都渋谷区渋谷3-10-14
24,997 円/坪から
※基準階とは、多階層ビルにおいて基準となる平面を持つ階になります。
※このページに含まれる情報は、一般的な情報提供のみを目的としています。特に空室状況については現況が異なる場合があるため、詳細についてはお問い合わせ下さい。