新橋5-7-8
新橋5-7-8
新橋5-7-8
オフィス
物件ID: JPN-P-000C1O
即入居可

永井ビル

東京都港区新橋5-7-8

14,000 円/坪から

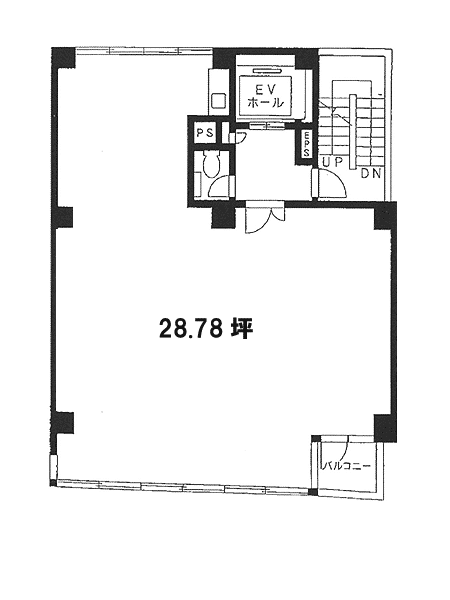
  • 募集面積:28.78 坪 / 95 m² 
  • 物件詳細
  • 物件概要
  • 所在地
  • 平面図

物件詳細

永井ビルは、1988年竣工の東京都港区にある賃貸オフィスビルです。地上9階建て、基準階面積は28.78坪、天井高は2,380mmです。最寄り駅は、JR横須賀線新橋駅から徒歩7分、JR京浜東北線新橋駅から徒歩7分、JR山手線新橋駅から徒歩7分です。

募集区画

所在地

平面図

※基準階とは、多階層ビルにおいて基準となる平面を持つ階になります。

※このページに含まれる情報は、一般的な情報提供のみを目的としています。特に空室状況については現況が異なる場合があるため、詳細についてはお問い合わせ下さい。