東上野6-2-1
東上野6-2-1
東上野6-2-1
オフィス
物件ID: JPN-P-000N11

MPR東上野ビル

東京都台東区東上野6-2-1

坪単価:お問い合せください

  • 募集面積:87.16 坪 / 288 m² 
  • 物件詳細
  • 物件概要
  • 所在地
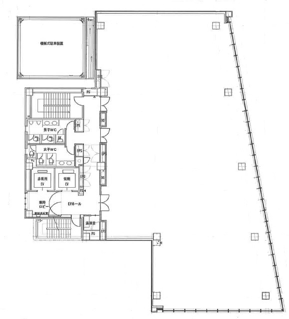
  • 平面図

物件詳細

MPR東上野ビルは、2009年竣工の東京都台東区にある賃貸オフィスビルです。地上10階建て、基準階面積は146.13坪、天井高は2,750mm、OAフロアあり、耐震構造です。最寄り駅は、東京メトロ銀座線稲荷町駅から徒歩2分、JR京浜東北線上野駅から徒歩9分、JR山手線上野駅から徒歩9分です。

募集区画

所在地

平面図

※基準階とは、多階層ビルにおいて基準となる平面を持つ階になります。

※このページに含まれる情報は、一般的な情報提供のみを目的としています。特に空室状況については現況が異なる場合があるため、詳細についてはお問い合わせ下さい。