
オフィス
物件ID: JPN-P-00BK0V新築・竣工予定
(仮)盛岡市大通2丁目店舗付きオフィス計画
岩手県盛岡市大通2-4-22
坪単価:お問い合せください
- 募集面積:21.07 - 141.51 坪 / 70 - 468 m²
- 物件詳細
- 物件概要
- 所在地
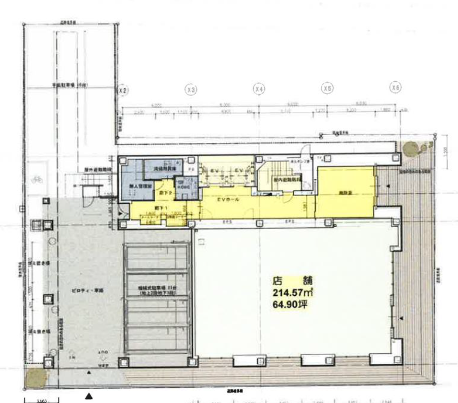
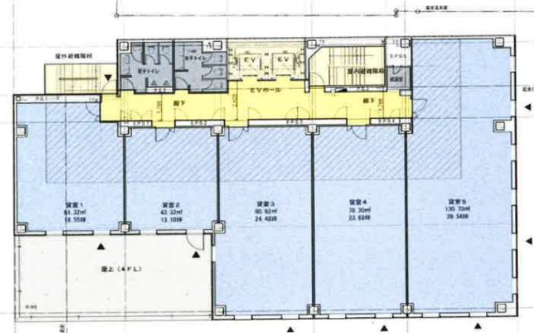
- 平面図
※基準階とは、多階層ビルにおいて基準となる平面を持つ階になります。
※このページに含まれる情報は、一般的な情報提供のみを目的としています。特に空室状況については現況が異なる場合があるため、詳細についてはお問い合わせ下さい。

岩手県盛岡市大通2-4-22
坪単価:お問い合せください
※基準階とは、多階層ビルにおいて基準となる平面を持つ階になります。
※このページに含まれる情報は、一般的な情報提供のみを目的としています。特に空室状況については現況が異なる場合があるため、詳細についてはお問い合わせ下さい。