芝大門2-2-8
芝大門2-2-8
オフィス
物件ID: JPN-P-001439

門前ビル

東京都港区芝大門2-2-8

坪単価:お問い合せください

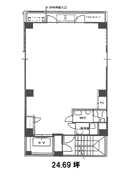
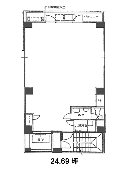
  • 募集面積:24.69 坪 / 82 m² 
  • 物件詳細
  • 物件概要
  • 所在地
  • 平面図
  • お問い合わせ

物件詳細

門前ビルは、1990年竣工の東京都港区にある賃貸オフィスビルです。地上7階建て、基準階面積は25.00坪です。最寄り駅は、都営大江戸線(環状部)大門駅から徒歩3分、都営浅草線大門駅から徒歩3分、JR京浜東北線浜松町駅から徒歩6分です。

募集区画

所在地

平面図

※基準階とは、多階層ビルにおいて基準となる平面を持つ階になります。

※このページに含まれる情報は、一般的な情報提供のみを目的としています。特に空室状況については現況が異なる場合があるため、詳細についてはお問い合わせ下さい。