
オフィス
物件ID: JPN-P-001HUE即入居可
三井住友海上松山三番町ビル
愛媛県松山市三番町4-12-7
9,000 円/坪から
- 募集面積:31.15 - 43.48 坪 / 103 - 144 m²
- 物件詳細
- 物件概要
- 所在地
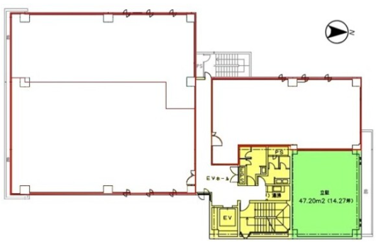
- 平面図
※基準階とは、多階層ビルにおいて基準となる平面を持つ階になります。
※このページに含まれる情報は、一般的な情報提供のみを目的としています。特に空室状況については現況が異なる場合があるため、詳細についてはお問い合わせ下さい。

愛媛県松山市三番町4-12-7
9,000 円/坪から
※基準階とは、多階層ビルにおいて基準となる平面を持つ階になります。
※このページに含まれる情報は、一般的な情報提供のみを目的としています。特に空室状況については現況が異なる場合があるため、詳細についてはお問い合わせ下さい。