鶴屋町2-10-1
鶴屋町2-10-1
鶴屋町2-10-1
オフィス
物件ID: JPN-P-000BKD

MINDANビル

神奈川県横浜市神奈川区鶴屋町2-10-1

15,000 円/坪から

  • 募集面積:20 坪 / 66 m² 
  • 物件詳細
  • 物件概要
  • 所在地
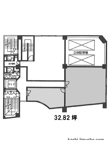
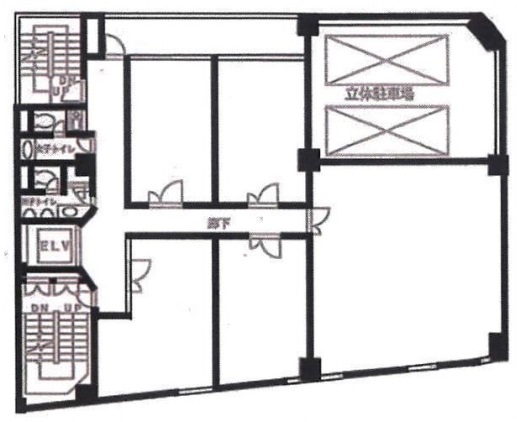
  • 平面図

物件詳細

MINDANビルは、1996年竣工の神奈川県横浜市神奈川区にある賃貸オフィスビルです。地上7階建て、基準階面積は75.00坪、天井高は2,600mm、耐震構造です。最寄り駅は、JR横須賀線横浜駅から徒歩5分、JR京浜東北線横浜駅から徒歩5分、JR根岸線横浜駅から徒歩5分です。

募集区画

所在地

平面図

※基準階とは、多階層ビルにおいて基準となる平面を持つ階になります。

※このページに含まれる情報は、一般的な情報提供のみを目的としています。特に空室状況については現況が異なる場合があるため、詳細についてはお問い合わせ下さい。