南品川2-2-7
南品川2-2-7
南品川2-2-7
南品川2-2-7
南品川2-2-7
オフィス
物件ID: JPN-P-000U40

南品川Jビル

東京都品川区南品川2-2-7

坪単価:お問い合せください

  • 募集面積:23.34 坪 / 77 m² 
  • 物件詳細
  • 物件概要
  • 所在地
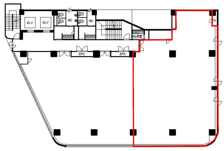
  • 平面図

物件詳細

南品川Jビルは、1992年竣工の東京都品川区にある賃貸オフィスビルです。地上10階/地下1階建て、基準階面積は123.22坪、天井高は2,550mm、OAフロアあり、耐震構造です。最寄り駅は、京急本線新馬場駅から徒歩4分、京急本線青物横丁駅から徒歩4分、京急本線鮫洲駅から徒歩11分です。

募集区画

所在地

平面図

※基準階とは、多階層ビルにおいて基準となる平面を持つ階になります。

※このページに含まれる情報は、一般的な情報提供のみを目的としています。特に空室状況については現況が異なる場合があるため、詳細についてはお問い合わせ下さい。