麹町1-3-5
麹町1-3-5
オフィス
物件ID: JPN-P-000QPD
即入居可

ミクニビル

東京都千代田区麹町1-3-5

15,000 円/坪から

  • 募集面積:20.72 坪 / 68 m² 
  • 物件詳細
  • 物件概要
  • 所在地
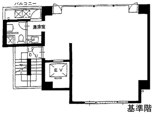
  • 平面図
  • お問い合わせ

物件詳細

ミクニビルは、1986年竣工の東京都千代田区にある賃貸オフィスビルです。地上10階建て、基準階面積は21.00坪、天井高は2,380mm、耐震構造です。最寄り駅は、東京メトロ半蔵門線半蔵門駅から徒歩2分、東京メトロ有楽町線麹町駅から徒歩5分、東京メトロ南北線永田町駅から徒歩10分です。

募集区画

所在地

平面図

※基準階とは、多階層ビルにおいて基準となる平面を持つ階になります。

※このページに含まれる情報は、一般的な情報提供のみを目的としています。特に空室状況については現況が異なる場合があるため、詳細についてはお問い合わせ下さい。