オフィス
物件ID: JPN-P-00AAWF

みどりやビル

青森県青森市長島2-1-5

10,000 円/坪から

  • 募集面積:56.18 - 85.57 坪 / 186 - 283 m² 
  • 物件詳細
  • 物件概要
  • 所在地
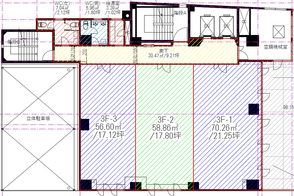
  • 平面図
  • お問い合わせ

物件詳細

みどりやビルは、青森県青森市にある賃貸オフィスビルです。地上10階/地下1階建て、基準階面積は56.17坪です。最寄り駅は、JR奥羽本線(秋田-青森)青森駅から徒歩12分、JR津軽線青森駅から徒歩12分、連絡バス(青森空港-青森)青森駅から徒歩12分です。

募集区画

所在地

平面図

※基準階とは、多階層ビルにおいて基準となる平面を持つ階になります。

※このページに含まれる情報は、一般的な情報提供のみを目的としています。特に空室状況については現況が異なる場合があるため、詳細についてはお問い合わせ下さい。