倉庫
物件ID: JPN-P-001MT7IC5km以内
即入居可
MFLP横浜大黒
神奈川県横浜市鶴見区
坪単価:お問い合せください
- 募集面積:600 - 1,418.06 坪 / 1,983 - 4,688 m²
- 物件詳細
- 物件概要
- 所在地
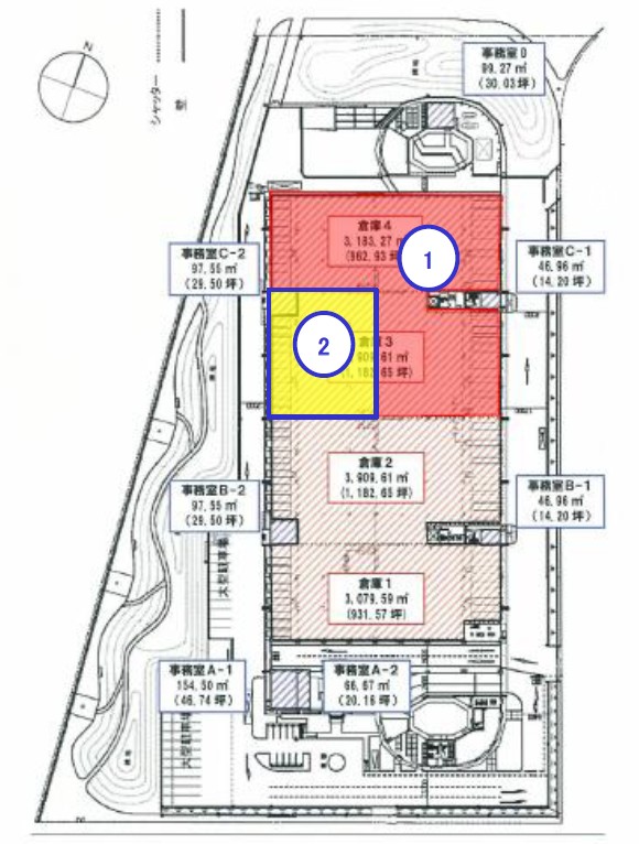
- 平面図
- お問い合わせ
※このページに含まれる情報は、一般的な情報提供のみを目的としています。特に空室状況については現況が異なる場合があるため、詳細についてはお問い合わせ下さい。
※賃貸条件や建物設備は変更する可能性があるため、ご契約内容の詳細についてはお問い合わせ下さい。


