MFLP茨木
2,432.12 - 7,552.83 坪
/
8,040 - 24,968 m²
坪単価:お問い合せください
JP
お電話
お問合せ
オフィス・事務所
倉庫・物流センター
地図検索
記事
仲介会社様はこちらへ
お気に入り
JP
お電話
お問合せ
倉庫
物件ID:
JPN-P-001NAU
2 写真
8 図面
MFLP茨木
大阪府茨木市
坪単価:お問い合せください
募集面積:
2,432.12 - 7,552.83 坪
/
8,040 - 24,968 m²
お問い合わせ
お電話
共有する
物件詳細
物件概要
所在地
平面図
物件詳細
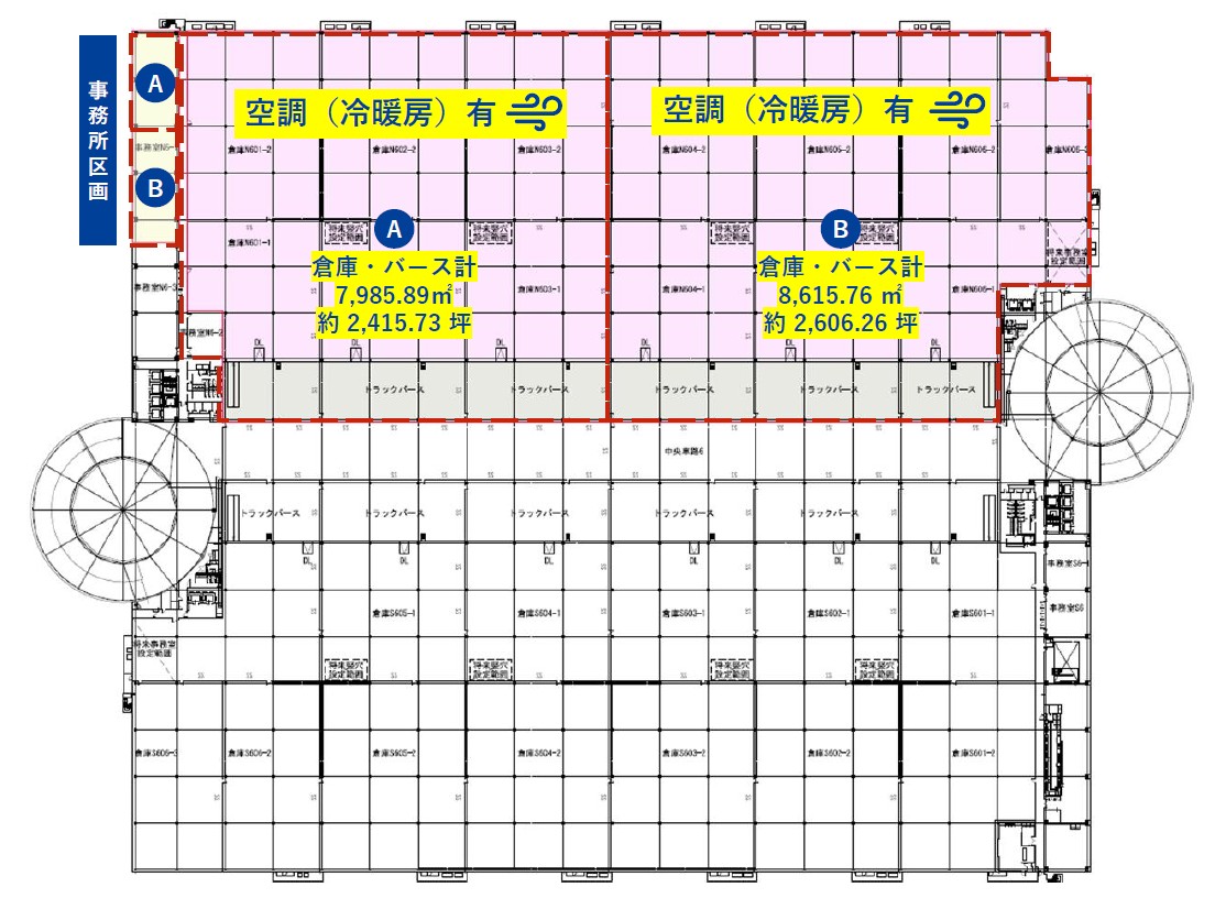
MFLP茨木は、2017年竣工の大阪府茨木市にある、物流施設、貸し倉庫等の賃貸物流物件です。地上6階建て、延床面積は73,333.61坪(242,425.16㎡)、天井高5,500mm、床荷重1,500kg、構造はS造、耐震構造は免震、用途地域は準工業地域です。最寄り駅は、大阪モノレール彩都線彩都西駅から徒歩28分です。最寄りICは、名神高速道路茨木ICから約6km、新名神高速道路茨木千提寺ICから約8kmです。
募集区画
所在地
平面図
倉庫
大阪府
茨木市
MFLP茨木