音羽1-20-14
音羽1-20-14
オフィス
物件ID: JPN-P-000B5G

MBS音羽ビル

東京都文京区音羽1-20-14

10,911 円/坪から

  • 募集面積:21.17 - 42.34 坪 / 70 - 140 m² 
  • 物件詳細
  • 物件概要
  • 所在地
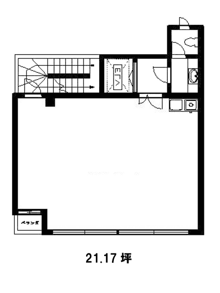
  • 平面図

物件詳細

MBS音羽ビルは、1989年竣工の東京都文京区にある賃貸オフィスビルです。地上9階建て、基準階面積は21.17坪、天井高は2,600mm、耐震構造です。最寄り駅は、東京メトロ有楽町線護国寺駅から徒歩1分、東京メトロ有楽町線東池袋駅から徒歩13分、都電荒川線東池袋四丁目駅から徒歩13分です。

募集区画

所在地

平面図

※基準階とは、多階層ビルにおいて基準となる平面を持つ階になります。

※このページに含まれる情報は、一般的な情報提供のみを目的としています。特に空室状況については現況が異なる場合があるため、詳細についてはお問い合わせ下さい。