大久保1-3-21
大久保1-3-21
オフィス
物件ID: JPN-P-000GM7

ルーシッドスクエア新宿イースト

東京都新宿区大久保1-3-21

坪単価:お問い合せください

  • 募集面積:96.77 - 152.28 坪 / 320 - 503 m² 
  • 物件詳細
  • 物件概要
  • 所在地
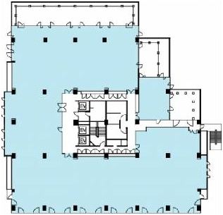
  • 平面図

物件詳細

ルーシッドスクエア新宿イーストは、1990年竣工の東京都新宿区にある賃貸オフィスビルです。地上8階/地下1階建て、基準階面積は339.74坪、天井高は2,600mm、OAフロアあり、耐震構造です。最寄り駅は、東京メトロ副都心線東新宿駅から徒歩1分、都営大江戸線(環状部)東新宿駅から徒歩1分、東京メトロ副都心線西早稲田駅から徒歩9分です。

募集区画

所在地

平面図

※基準階とは、多階層ビルにおいて基準となる平面を持つ階になります。

※このページに含まれる情報は、一般的な情報提供のみを目的としています。特に空室状況については現況が異なる場合があるため、詳細についてはお問い合わせ下さい。