
倉庫
物件ID: JPN-P-001NB8IC5km以内
ロジスクエア大阪交野
大阪府交野市
坪単価:お問い合せください
- 募集面積:2,641.98 - 5,561.51 坪 / 8,734 - 18,385 m²
- 物件詳細
- 物件概要
- 所在地
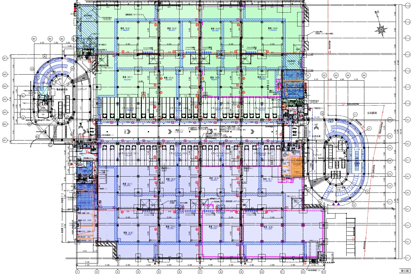
- 平面図
- お問い合わせ
物件詳細
ロジスクエア大阪交野は、2021年竣工の大阪府交野市にある、物流施設、貸し倉庫等の賃貸物流物件です。地上4階建て、延床面積は24,400.07坪(80,661.39㎡)、天井高6,000mm、床荷重1,500kg、構造はS造、耐震構造は制震、用途地域は工業地域です。最寄り駅は、JR片町線〔学研都市線〕星田駅から徒歩15分、JR片町線〔学研都市線〕河内磐船駅から徒歩21分、京阪交野線河内森駅から徒歩21分です。最寄りICは、第二京阪道路(均一区間)交野南ICから約1.6km、第二京阪道路(均一区間)寝屋川北ICから約3km、第二京阪道路(均一区間)交野北ICから約4kmです。
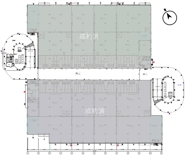
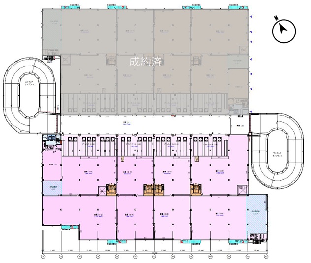
募集区画
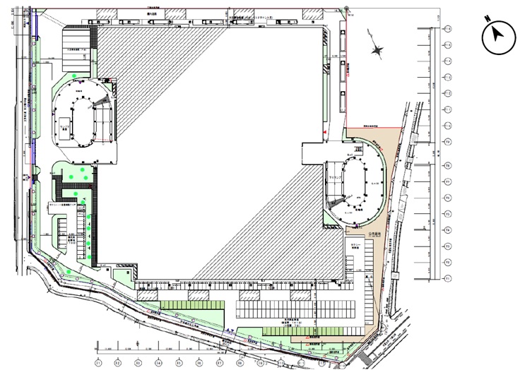
所在地
※このページに含まれる情報は、一般的な情報提供のみを目的としています。特に空室状況については現況が異なる場合があるため、詳細についてはお問い合わせ下さい。
※賃貸条件や建物設備は変更する可能性があるため、ご契約内容の詳細についてはお問い合わせ下さい。