倉庫
物件ID: JPN-P-003UH8おすすめ
IC5km以内
LOGI LAND小郡鳥栖インターI
福岡県小郡市
坪単価:お問い合せください
- 募集面積:3,306.97 - 6,634.1 坪 / 10,932 - 21,931 m²
- 物件詳細
- 物件概要
- 所在地
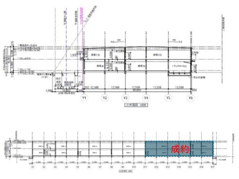
- 平面図
- お問い合わせ
※このページに含まれる情報は、一般的な情報提供のみを目的としています。特に空室状況については現況が異なる場合があるため、詳細についてはお問い合わせ下さい。
※賃貸条件や建物設備は変更する可能性があるため、ご契約内容の詳細についてはお問い合わせ下さい。


