東日本橋2-24-9
東日本橋2-24-9
オフィス
物件ID: JPN-P-000CLH
即入居可

LIT

東京都中央区東日本橋2-24-9

24,000 円/坪から

  • 募集面積:22.53 坪 / 74 m² 
  • 物件詳細
  • 物件概要
  • 所在地
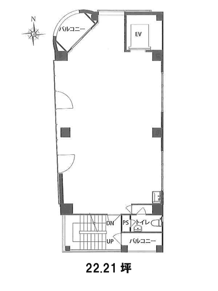
  • 平面図
  • お問い合わせ

物件詳細

LITは、1987年竣工の東京都中央区にある賃貸オフィスビルです。地上10階建て、基準階面積は25.50坪、天井高は2,800mm、耐震構造です。最寄り駅は、JR総武本線(東京-銚子)馬喰町駅から徒歩3分、都営浅草線東日本橋駅から徒歩4分、都営浅草線浅草橋駅から徒歩5分です。

募集区画

所在地

平面図

※基準階とは、多階層ビルにおいて基準となる平面を持つ階になります。

※このページに含まれる情報は、一般的な情報提供のみを目的としています。特に空室状況については現況が異なる場合があるため、詳細についてはお問い合わせ下さい。