神田神保町3-4-29
神田神保町3-4-29
オフィス
物件ID: JPN-P-000SPA

九段下SSTビル

東京都千代田区神田神保町3-4-29

坪単価:お問い合せください

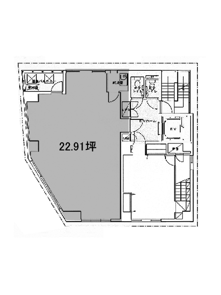
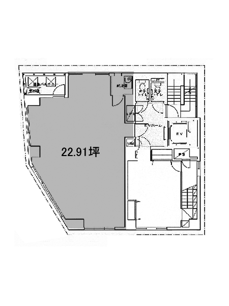
  • 募集面積:22.91 坪 / 76 m² 
  • 物件詳細
  • 物件概要
  • 所在地
  • 平面図

物件詳細

九段下SSTビルは、2008年竣工の東京都千代田区にある賃貸オフィスビルです。地上8階建て、基準階面積は31.00坪、天井高は2,700mm、OAフロアあり、耐震構造です。最寄り駅は、東京メトロ東西線九段下駅から徒歩2分、東京メトロ半蔵門線九段下駅から徒歩2分、都営新宿線九段下駅から徒歩2分です。

募集区画

所在地

平面図

※基準階とは、多階層ビルにおいて基準となる平面を持つ階になります。

※このページに含まれる情報は、一般的な情報提供のみを目的としています。特に空室状況については現況が異なる場合があるため、詳細についてはお問い合わせ下さい。