九段南3-5-3
九段南3-5-3
九段南3-5-3
オフィス
物件ID: JPN-P-0009VP

九段サウスビル

東京都千代田区九段南3-5-3

19,000 円/坪から

  • 募集面積:25.2 坪 / 83 m² 
  • 物件詳細
  • 物件概要
  • 所在地
  • 平面図
  • お問い合わせ

物件詳細

九段サウスビルは、1987年竣工の東京都千代田区にある賃貸オフィスビルです。地上5階建て、基準階面積は25.00坪、天井高は2,450mm、耐震構造です。最寄り駅は、都営新宿線市ヶ谷駅から徒歩6分、東京メトロ有楽町線市ヶ谷駅から徒歩9分、JR中央本線(東京-塩尻)市ヶ谷駅から徒歩10分です。

募集区画

所在地

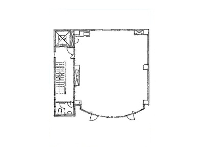
平面図

※基準階とは、多階層ビルにおいて基準となる平面を持つ階になります。

※このページに含まれる情報は、一般的な情報提供のみを目的としています。特に空室状況については現況が異なる場合があるため、詳細についてはお問い合わせ下さい。