本郷1-34-3
本郷1-34-3
オフィス
物件ID: JPN-P-000Y1P

後楽園SAJビル

東京都文京区本郷1-34-3

坪単価:お問い合せください

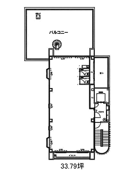
  • 募集面積:33.79 坪 / 112 m² 
  • 物件詳細
  • 物件概要
  • 所在地
  • 平面図

物件詳細

後楽園SAJビルは、1992年竣工の東京都文京区にある賃貸オフィスビルです。地上9階/地下1階建て、基準階面積は66.00坪、天井高は2,500mm、OAフロアあり、耐震構造です。最寄り駅は、都営大江戸線(環状部)春日駅から徒歩3分、都営三田線春日駅から徒歩3分、東京メトロ丸ノ内線後楽園駅から徒歩5分です。

募集区画

所在地

平面図

※基準階とは、多階層ビルにおいて基準となる平面を持つ階になります。

※このページに含まれる情報は、一般的な情報提供のみを目的としています。特に空室状況については現況が異なる場合があるため、詳細についてはお問い合わせ下さい。