芝公園2-6-15
芝公園2-6-15
芝公園2-6-15
芝公園2-6-15
オフィス
物件ID: JPN-P-0009MJ

黒龍堂芝公園ビル東館

東京都港区芝公園2-6-15

坪単価:お問い合せください

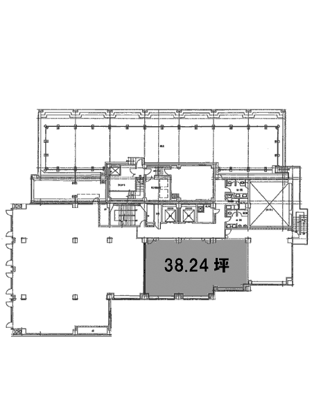
  • 募集面積:38.24 坪 / 126 m² 
  • 物件詳細
  • 物件概要
  • 所在地
  • 平面図

物件詳細

黒龍堂芝公園ビル東館は、1978年竣工の東京都港区にある賃貸オフィスビルです。地上9階/地下1階建て、基準階面積は291.91坪、天井高は2,700mmです。最寄り駅は、都営三田線御成門駅から徒歩5分、都営大江戸線(環状部)赤羽橋駅から徒歩7分、都営三田線芝公園駅から徒歩9分です。

募集区画

所在地

平面図

※基準階とは、多階層ビルにおいて基準となる平面を持つ階になります。

※このページに含まれる情報は、一般的な情報提供のみを目的としています。特に空室状況については現況が異なる場合があるため、詳細についてはお問い合わせ下さい。