北青山3-6-20
北青山3-6-20
北青山3-6-20
北青山3-6-20
オフィス
物件ID: JPN-P-00099W

KFIビル

東京都港区北青山3-6-20

坪単価:お問い合せください

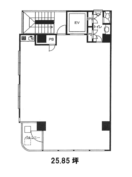
  • 募集面積:25.85 坪 / 85 m² 
  • 物件詳細
  • 物件概要
  • 所在地
  • 平面図
  • お問い合わせ

物件詳細

KFIビルは、1993年竣工の東京都港区にある賃貸オフィスビルです。地上9階/地下1階建て、基準階面積は26.00坪、天井高は2,340mmです。最寄り駅は、東京メトロ銀座線表参道駅から徒歩1分、東京メトロ千代田線表参道駅から徒歩1分、東京メトロ半蔵門線表参道駅から徒歩1分です。

募集区画

所在地

平面図

※基準階とは、多階層ビルにおいて基準となる平面を持つ階になります。

※このページに含まれる情報は、一般的な情報提供のみを目的としています。特に空室状況については現況が異なる場合があるため、詳細についてはお問い合わせ下さい。