府中町1-9
府中町1-9
府中町1-9
府中町1-9
府中町1-9
府中町1-9
オフィス
物件ID: JPN-P-000SYW

京王府中1丁目ビル

東京都府中市府中町1-9

坪単価:お問い合せください

  • 募集面積:104.25 坪 / 345 m² 
  • 物件詳細
  • 物件概要
  • 所在地
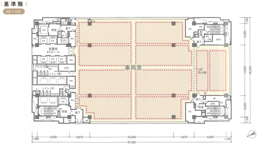
  • 平面図

物件詳細

京王府中1丁目ビルは、1993年竣工の東京都府中市にある賃貸オフィスビルです。地上14階建て、基準階面積は267.25坪、OAフロアあり、耐震構造です。最寄り駅は、京王線府中駅から徒歩3分、京王競馬場線府中競馬正門前駅から徒歩11分、JR南武線(川崎-立川)府中本町駅から徒歩15分です。

募集区画

所在地

平面図

※基準階とは、多階層ビルにおいて基準となる平面を持つ階になります。

※このページに含まれる情報は、一般的な情報提供のみを目的としています。特に空室状況については現況が異なる場合があるため、詳細についてはお問い合わせ下さい。