瓦町4-2-14
瓦町4-2-14
瓦町4-2-14
オフィス
物件ID: JPN-P-000984

京阪神瓦町ビル

大阪府大阪市中央区瓦町4-2-14

坪単価:お問い合せください

  • 募集面積:191.44 坪 / 633 m² 
  • 物件詳細
  • 物件概要
  • 所在地
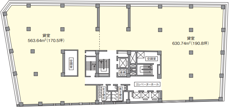
  • 平面図

物件詳細

京阪神瓦町ビルは、1962年竣工の大阪府大阪市中央区にある賃貸オフィスビルです。地上9階/地下3階建て、基準階面積は361.30坪、天井高は2,450mm、OAフロアあり、耐震構造です。最寄り駅は、OsakaMetro御堂筋線本町駅から徒歩3分、OsakaMetro御堂筋線淀屋橋駅から徒歩6分、OsakaMetro中央線本町駅から徒歩6分です。

募集区画

所在地

平面図

※基準階とは、多階層ビルにおいて基準となる平面を持つ階になります。

※このページに含まれる情報は、一般的な情報提供のみを目的としています。特に空室状況については現況が異なる場合があるため、詳細についてはお問い合わせ下さい。