勝島第2地区倉庫
66.76 - 732.52 坪
/
221 - 2,422 m²
坪単価:お問い合せください
JP
お電話
お問合せ
オフィス・事務所
倉庫・物流センター
地図検索
記事
仲介会社様はこちらへ
お気に入り
JP
お電話
お問合せ
倉庫
物件ID:
JPN-P-001NNR
IC5km以内
即入居可
8 図面
勝島第2地区倉庫
東京都品川区
坪単価:お問い合せください
募集面積:
66.76 - 732.52 坪
/
221 - 2,422 m²
お問い合わせ
お電話
共有する
物件詳細
物件概要
所在地
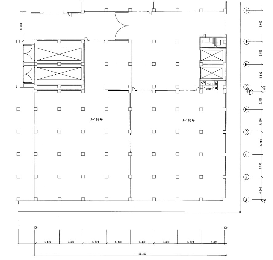
平面図
物件詳細
勝島第2地区倉庫は、1971年竣工の東京都品川区にある、物流施設、貸し倉庫等の賃貸物流物件です。地上6階建て、延床面積は21,399.86坪(70,743.34㎡)、天井高5,000mm、床荷重1,500kg、構造はS造、用途地域は準工業地域です。最寄り駅は、東京モノレール大井競馬場前駅から徒歩8分、京急本線鮫洲駅から徒歩12分、京急本線立会川駅から徒歩14分です。最寄りICは、首都1号羽田線勝島出入口から約1.6km、首都1号羽田線鈴ヶ森出入口から約2.6km、首都中央環状線中環大井南出入口から約10.4kmです。
募集区画
所在地
平面図
倉庫
東京都
品川区
勝島第2地区倉庫